Kenmerken

Koopprijs
€ 435.000,- k.k.
Status
Beschikbaar
Bouwjaar
2023
Soorten
Geen garage
Perceel
125 m2
  • Hoveniersweg 65: verfijnd wonen, klaar voor de toekomst.

    Op zoek naar een moderne, duurzame woning die zich werkelijk onderscheidt? Hoveniersweg 65 biedt alles wat je mag verwachten van toekomstbestendig wonen – en meer.
    Deze woning is in 2024 volledig en hoogwaardig getransformeerd, met een scherp oog voor design, comfort en energiebesparing. Het resultaat is een uitzonderlijk hoog woonniveau waarin luxe en duurzaamheid naadloos samenkomen.

    De woning beschikt over een uitstekend energielabel A++, een geavanceerde warmtepomp en vloerverwarming op alle woonlagen, wat garant staat voor een aangenaam binnenklimaat en verrassend lage energiekosten. Voor maximaal comfort is iedere woonlaag voorzien van een eigen thermostaat, zodat het klimaat per verdieping individueel en nauwkeurig kan worden afgestemd.

    Ook op het gebied van toekomstbestendigheid is aan alles gedacht. De woning is reeds voorbereid op zonnepanelen dankzij een aangelegde leiding van de meterkast tot aan het dak. Parkeren gebeurt op eigen terrein, met een privéparkeerplaats die is voorbereid voor de installatie van een laadpaal – volledig in lijn met modern en elektrisch rijden.

    Binnen tref je een ruime, lichte en bijzonder praktische indeling, die volop mogelijkheden biedt om een persoonlijk en hoogwaardig interieur te realiseren. De woning beschikt over drie royale slaapkamers, aangevuld met een extra kamer op de begane grond die zich uitstekend leent als werk-, logeer- of slaapkamer. Praktische luxe uit zich verder in een aparte wasruimte en maatwerk inbouwkasten, die bijdragen aan een opgeruimde en serene woonbeleving.

    De casco opgeleverde keuken en badkamer bieden de vrijheid om deze ruimtes geheel naar eigen smaak en niveau af te werken. Bovendien zijn er reeds aansluitingen aanwezig voor het realiseren van een tweede casco badkamer, wat de woning bijzonder aantrekkelijk maakt voor gezinnen of gastenverblijf.
    Ook buiten biedt de woning extra potentie: het achterliggende perceel biedt de mogelijkheid tot het plaatsen van een schuur, ideaal voor extra opslag of een stijlvolle hobbyruimte.

    De ligging aan de Hoveniersweg combineert rust met uitstekende bereikbaarheid. Winkels, scholen en sportfaciliteiten bevinden zich in de directe omgeving en via de A15 zijn omliggende steden snel en eenvoudig bereikbaar. Een locatie die comfort, bereikbaarheid en woonkwaliteit perfect in balans brengt.

    Hoveniersweg 65 – duurzaam, comfortabel en helemaal klaar voor jouw toekomst.
    Grijp nu de kans om van deze moderne woning jouw ideale thuis te maken!

    Indeling

    Bij binnenkomst stap je de hal binnen, met aan de rechterzijde de meterkast. Vanuit hier is alvast vooruit gedacht: de leiding naar het dak voor zonnepanelen ligt er al.
    Loop je door naar de ruime woonkamer, dan ervaar je direct de mogelijkheden. Er is plaats voor een open keuken, een gezellige eethoek en een comfortabele zithoek. De keuken wordt casco opgeleverd, zodat je hem geheel naar eigen wens kunt afwerken. De gehele woning beschikt over vloerverwarming en wordt verwarmd door een moderne warmtepomp, in combinatie met een energielabel A++ – duurzaam en comfortabel dus. Vanuit de woonkamer bereik je de trap naar de eerste verdieping en de doorgang naar de tweede hal.
    Hier vind je een separaat toilet en een extra kamer die uitstekend dienst kan doen als werkkamer of slaapkamer.

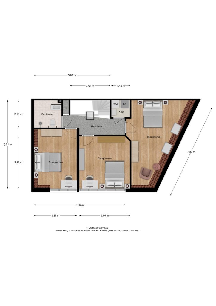
    Op de eerste verdieping leidt de overloop naar alle vertrekken. Er is een praktische wasruimte met aansluitingen voor wasmachine en droger, drie ruime slaapkamers en de badkamer. Net als de keuken is ook de badkamer casco opgeleverd, zodat je deze geheel naar eigen stijl kunt afwerken. Daarnaast zijn er aansluitingen aanwezig voor een tweede casco badkamer. De hoofdslaapkamer is royaal en geniet van veel natuurlijk licht, terwijl ook de tweede en derde slaapkamer ruim en licht zijn. Extra praktisch is de inbouwkast naast de badkamer.
    De gehele woning is voorzien van vloerverwarming.

    Buiten beschik je over een eigen voortuin; een plek waar je rustig kunt zitten, tuinieren of je fiets kwijt kunt. Er is aan de voorzijde van het gebouw een gereserveerde privéparkeerplaats op eigen terrein, bereikbaar via een gezamenlijk pad. Daarnaast is er op een apart deel van het perceel aan de voorzijde ruimte gereserveerd waar, indien gewenst, een schuur geplaatst of gebouwd kan worden.

    Wat betreft elektrisch rijden: er is alvast een voorbereidende elektrische aansluiting aanwezig. Vanuit de meterkast is een stroomkabel (3×2,5 mm²) met 20A zekering aangelegd tot aan de voortuin. Hiermee is de woning voorbereid op het eventueel later realiseren van een laadpunt – de exacte uitvoering daarvan ligt nog open en is flexibel in te vullen.

    Belangrijkste kenmerken:
    – Volledig getransformeerd in 2024 – modern, duurzaam en klaar voor de toekomst;

    – Voorzien van een warmtepomp;

    – Energielabel A++, voorzien van warmtepomp en vloerverwarming op alle woonlagen;

    – Voorbereid op zonnepanelen: losse leiding van meterkast tot het dak;

    – Elke woonlaag een eigen thermostaat voor optimaal comfort;

    – 3 ruime slaapkamers, plus extra kamer op de begane grond als werk- of slaapkamer;

    – Casco keuken en badkamer, met aansluitingen voor een tweede casco badkamer;

    – Mogelijkheid om op achterliggend perceel een schuur te plaatsen;

    – Privéparkeerplaats met voorbereiding voor laadpaal;

    – Ruime en lichte indeling met praktische extra’s zoals een wasruimte en inbouwkast;

    – Gelegen op een rustige en centrale locatie in Tiel;

    – Levering via Aitton Notarissen te Tiel.

    Brochures

    Download media

    Koopprijs
    € 435.000,- k.k.

    Meer informatie?

    Adviesgesprek? Laat je telefoonnummer achter en wij nemen contact met je op.

      [dataspeak text="Stel je vraag hier!" form="contact"]