Kenmerken

Koopprijs
€ 499.500,- k.k.
Status
Beschikbaar
Bouwjaar
1995
Soorten
Carport, Parkeerplaats
Perceel
181 m2
Bijzonderheden
Gemeubileerd
  • Gemeubileerd
  • Welkom bij Engelandstraat 15 – Rosmalen
    Een royale en instapklare hoekwoning waar ruimte, comfort en modern woonplezier perfect samenkomen. Gelegen in de geliefde wijk De Overlaet biedt deze woning een hoog afwerkingsniveau, een uitstekende ligging én verrassend veel wooncomfort. Een thuis waar je zó kunt intrekken.

    Wonen & koken

    Bij binnenkomst ervaar je direct de prettige sfeer van de lichte, ruime woonkamer. De strakke afwerking, het royale formaat en de fijne verbinding met de tuin maken dit een heerlijke leefruimte waar rust en comfort centraal staan.
    De moderne keuken (2023) sluit hier naadloos op aan en vormt het kloppend hart van de woning. Met hoogwaardige inbouwapparatuur, een stijlvol kook- en spoeleiland en een eigentijds design is deze keuken zowel een echte blikvanger als een praktische plek voor dagelijks gebruik en gezellige avonden met familie en vrienden.

    Slaapvertrekken

    Op de verdiepingen bevinden zich de comfortabele slaapkamers. De strak afgewerkte hoofdslaapkamer is voorzien van airconditioning en biedt het hele jaar door een aangenaam binnenklimaat.
    De tweede slaapkamer is ruim opgezet en kan eenvoudig worden opgesplitst, waardoor een derde slaapkamer gerealiseerd kan worden. Zo blijft de woning flexibel en toekomstbestendig voor uiteenlopende woonwensen.

    Buitenleven & parkeren

    De groene, rustige achtertuin biedt volop privacy en is een fijne plek om te ontspannen. Dankzij de hoekligging geniet je hier van extra ruimte en een vrij gevoel.
    Een bijzonder pluspunt zijn de twee privéparkeerplaatsen op eigen terrein – een zeldzaamheid in deze straat. De ruime carport met laadpaalaansluiting maakt de woning bovendien helemaal klaar voor elektrisch rijden en zorgt voor extra comfort bij thuiskomst.

    Ligging

    Engelandstraat 15 ligt in de populaire en kindvriendelijke wijk De Overlaet: een ruim opgezette, groene woonomgeving met waterpartijen, wandelpaden en diverse voorzieningen zoals scholen, speeltuinen, een dierenparkje en het gezellige centrum van Rosmalen. Het treinstation is snel bereikbaar en dankzij de gunstige ligging ten opzichte van de A2, A50 en A59 sta je binnen circa 10 minuten in ’s-Hertogenbosch. Openbaar vervoer bevindt zich op loopafstand.

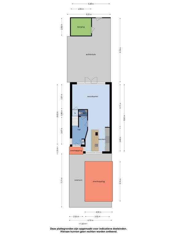
    Indeling

    Begane grond

    De begane grond is stijlvol en eigentijds ingericht en recent gemoderniseerd. De luxe keuken (2023) is uitgerust met hoogwaardige apparatuur, waaronder een inductiekookplaat met geïntegreerde afzuiging, koel-/vriescombinatie, vaatwasser en twee combi-ovens. Het kook- en spoeleiland met zitgedeelte nodigt uit tot samen koken en borrelen.
    De lichte L-vormige woonkamer, bereikbaar via een stijlvolle stalen taatsdeur, is afgewerkt met een hoogwaardige PVC-vloer (2023) die over de gehele begane grond is doorgelegd. Openslaande deuren geven direct toegang tot de tuin. Daarnaast is er een praktische provisiekast.
    De speels ingedeelde hal beschikt over een moderne trapopgang (2023), een strak afgewerkt toilet en een uitgebreide meterkast.

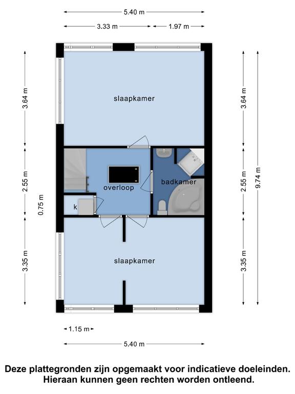
    Eerste verdieping

    Hier bevinden zich twee (voorheen drie) ruime slaapkamers met hoge plafonds, veel daglicht en een luxe laminaatvloer. De master bedroom is voorzien van airconditioning. Het terugbrengen van een derde slaapkamer is eenvoudig mogelijk.
    De volledig betegelde badkamer is compleet uitgevoerd met ligbad, inloopdouche, tweede zwevend toilet en een stijlvol wastafelmeubel met ingebouwde kraan. De wasapparatuur is netjes weggewerkt in een inbouwkast.

    Tweede verdieping

    Via een vlizotrap bereik je de ruime bergzolder, ideaal voor extra opslag. Hier bevindt zich tevens de moderne Remeha cv-ketel (2023).

    Buitenruimte

    De onderhoudsvriendelijke achtertuin op het noordwesten is fraai aangelegd met kunstgras, sfeervolle beplanting, meerdere lichtpunten, een wateraansluiting, afsluitbare achterom en een ruime stenen berging met elektra. Dankzij de gunstige ligging geniet je hier vrijwel de hele dag van de zon. De tuin wordt extra sfeervol door een blauwe regen en een appelboom, groen genieten met een vleugje eigen oogst.

    10 Bijzonderheden van Engelandstraat 15:

    – Royale hoekwoning met moderne uitstraling en unieke lichtinval
    – Twee parkeerplaatsen op eigen terrein, inclusief carport met laadpaalaansluiting
    – Luxe keuken (2023) met kook-/spoeleiland en hoogwaardige apparatuur
    – Ruime, lichte L-vormige woonkamer met openslaande deuren
    – Twee slaapkamers (voorheen drie), eenvoudig terug te brengen naar drie
    – Hoofdslaapkamer met airconditioning
    – Complete badkamer met ligbad, inloopdouche en tweede toilet
    – Onderhoudsvriendelijke, zonnige tuin met berging
    – Moderne cv-ketel (2023)
    – Gelegen in de groene, kindvriendelijke wijk De Overlaet

    Engelandstraat 15 is een echte buitenkans.
    Een instapklare woning met een moderne afwerking, volop ruimte en een toekomstbestendig karakter. Wacht niet te lang en maak snel een afspraak, deze woning moet je ervaren!

    Koopprijs
    € 499.500,- k.k.

    Meer informatie?

    Adviesgesprek? Laat je telefoonnummer achter en wij nemen contact met je op.